Przestrzeń wielofunkcyjna | Idea, Wariant, K-eM

Opis wizualizacji

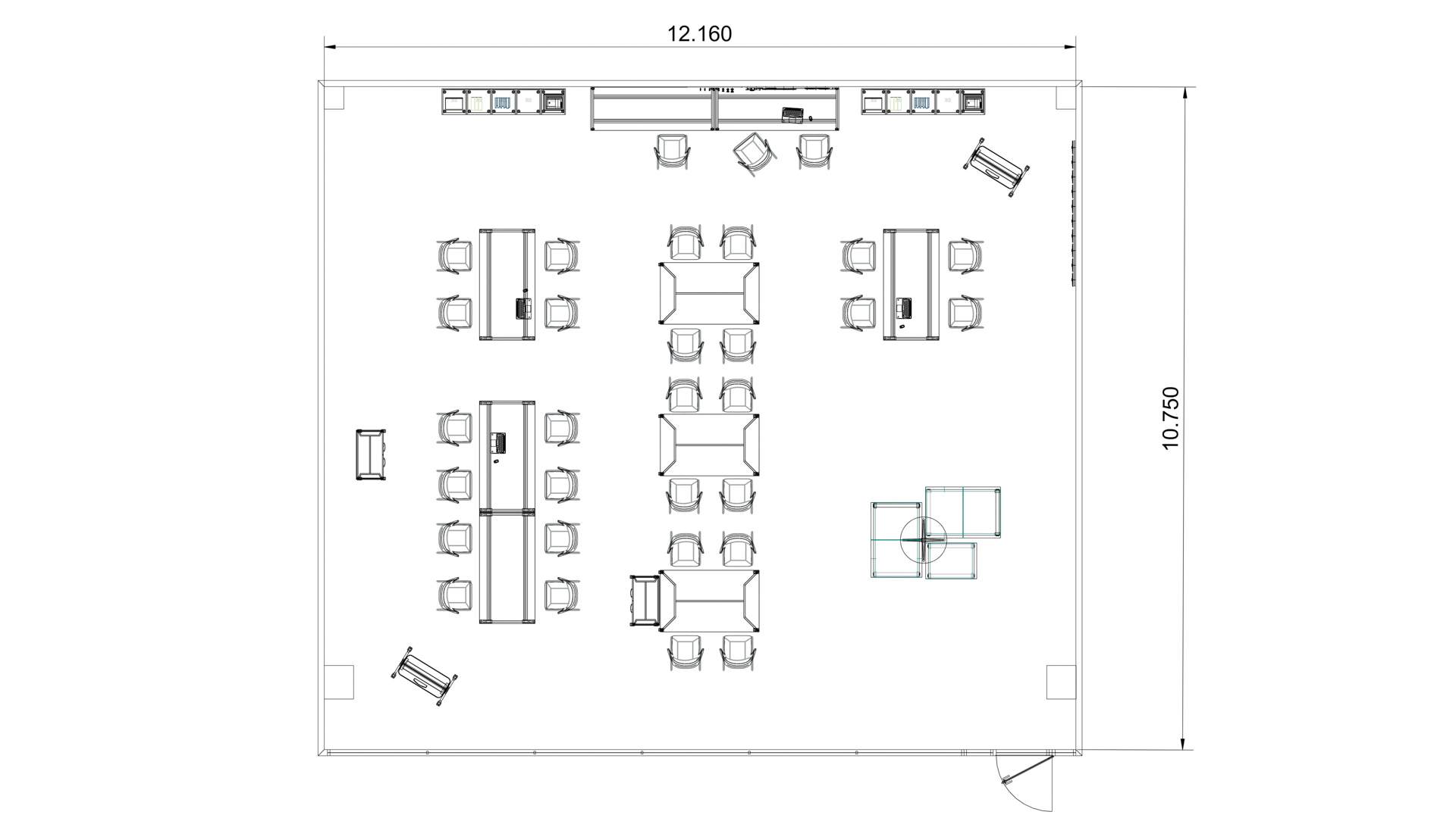
Układ wielofunkcjonalny sprosta oczekiwaniom biur wymagających elastycznych sposbów aranżowania przestrzeni. Stoły Idea A i Idea H sprawdzą się przy spotkaniach i szkoleniach, a biurka K-eM Space Mobile zapewniają komfortowe i ergonomiczne warunki do pracy wspólnej. Szafki mobilne Wariant idealnie wpisują się w dynamiczny klimat przestrzeni. Regały otwarte pozwalają na wiele możliwości ekspozycyjnych i dekoracyjnych.

Powierzchnia
132 m2
Szerokość układu: 12 m
Długość układu 11 m
Pliki do pobrania
dwg
multifunctional-space_-idea_wariant_k-em_2d_3x.dwg
(12.46MB)
dwg
multifunctional-space_-idea_wariant_k-em_2d.dwg
(3.81MB)
dwg
multifunctional-space_-idea_wariant_k-em_3d.dwg
(18.63MB)
3ds
multifunctional-space_-idea_wariant_k-em.3ds
(52.27MB)
Pliki do pobrania
dwg
multifunctional-space_-idea_wariant_k-em_2d_3x.dwg
(12.46MB)
dwg
multifunctional-space_-idea_wariant_k-em_2d.dwg
(3.81MB)
dwg
multifunctional-space_-idea_wariant_k-em_3d.dwg
(18.63MB)
3ds
multifunctional-space_-idea_wariant_k-em.3ds
(52.27MB)
Strefa biura
kawiarnie + kantyny
strefa konferencyjna
Tryb pracy
wypoczynek
spotkania
współpraca